• rfsrealestate.in_evaluation
  • 56 Klikimet e pronës
  • 1,200 €

Shiten 2 apartamente 5 minuta nga ura e Paskuqanit. Lidhja e Prizrenit Residence.

Paskuqan Tirana

Përshkrimi

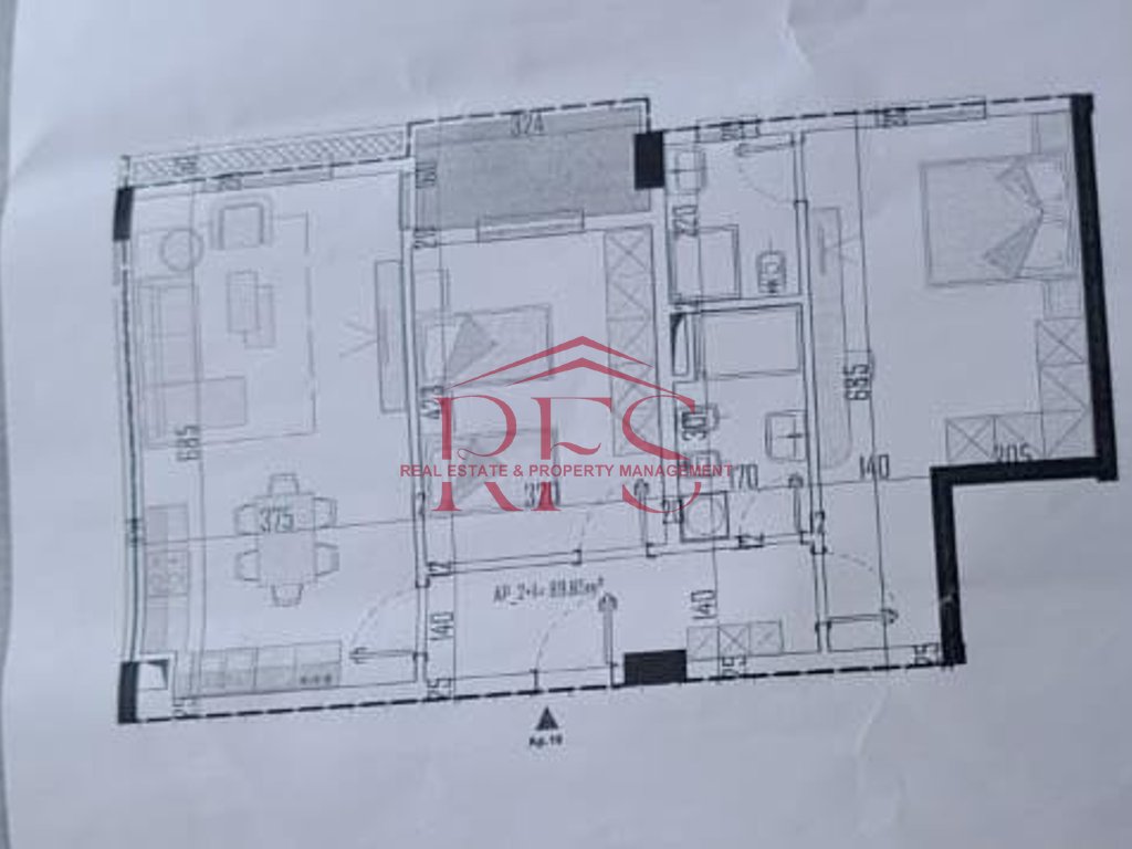
2 Apartamente ne Paskuqan 100.75m2 - kati 2 banim 100m2 - kati 3 banim 1200€ m2, perfundojne beharin e 2026. I gjeni vec tek Rfs.

  • Shpërndaj :

Karakteristikat

Lloji

Apartament

Sipërfaqja

m2

Statusi

rfsrealestate.in_evaluation

Statusi i Prones

Listimet e fundit

Additional Details

ID:
RFS182
Cmimi:
1,200 €
Lloji i Pronës:
Apartament
Siperfaqja:
m2
Dhomat e gjumit:
0
Tualete:
0
Sip. Totale:
0 m2
Sip. e brendshme:
0 m2

Prona të ngjashme